An Open Letter to Oak Ridge, NC Residents

Hello Oak Ridge Neighbors,

My family and I live in the Ashton Park neighborhood, in Oak Ridge NC. We’ve been here for five years and absolutely love this community. After living many years in Northern Virginia, the quiet and calm of Oak Ridge (and Ashton Park in particular) were some of the main reasons we chose to make this our home.

I’m writing to share information about something that may significantly affect the quality of life for all of us. A company is seeking approval to turn the house at the corner of Bunch Road and Highway 150 into an event center. You may already know about this, but in case not, I want to make sure you have the details.

Summary of the Proposal

The property owners of 2524 Oak Ridge Road (the white house with columns at the corner of Highway 150) are applying for a Special Use Permit to convert the residence into a commercial event center capable of hosting 150+ person events, as the developer said, “as often as possible,” on a 3-acre lot within our neighborhood. A hearing was scheduled for December 4, 2025 at 7pm at Oak Ridge Town Hall, but it was delayed until February 5, 2026. At that hearing, I spoke against the proposal (with the excellent support of many of our neighbors), and town council voted that the proposal for the event center didn't meet two of the four necessary requirements. While technically this means it should be denied, the town council opted to continue the hearing on April 9, 2026 at 7pm at Town Hall. They said this would give the property owners a chance to find more evidence proving that they are "in harmony" with the neighborhood.

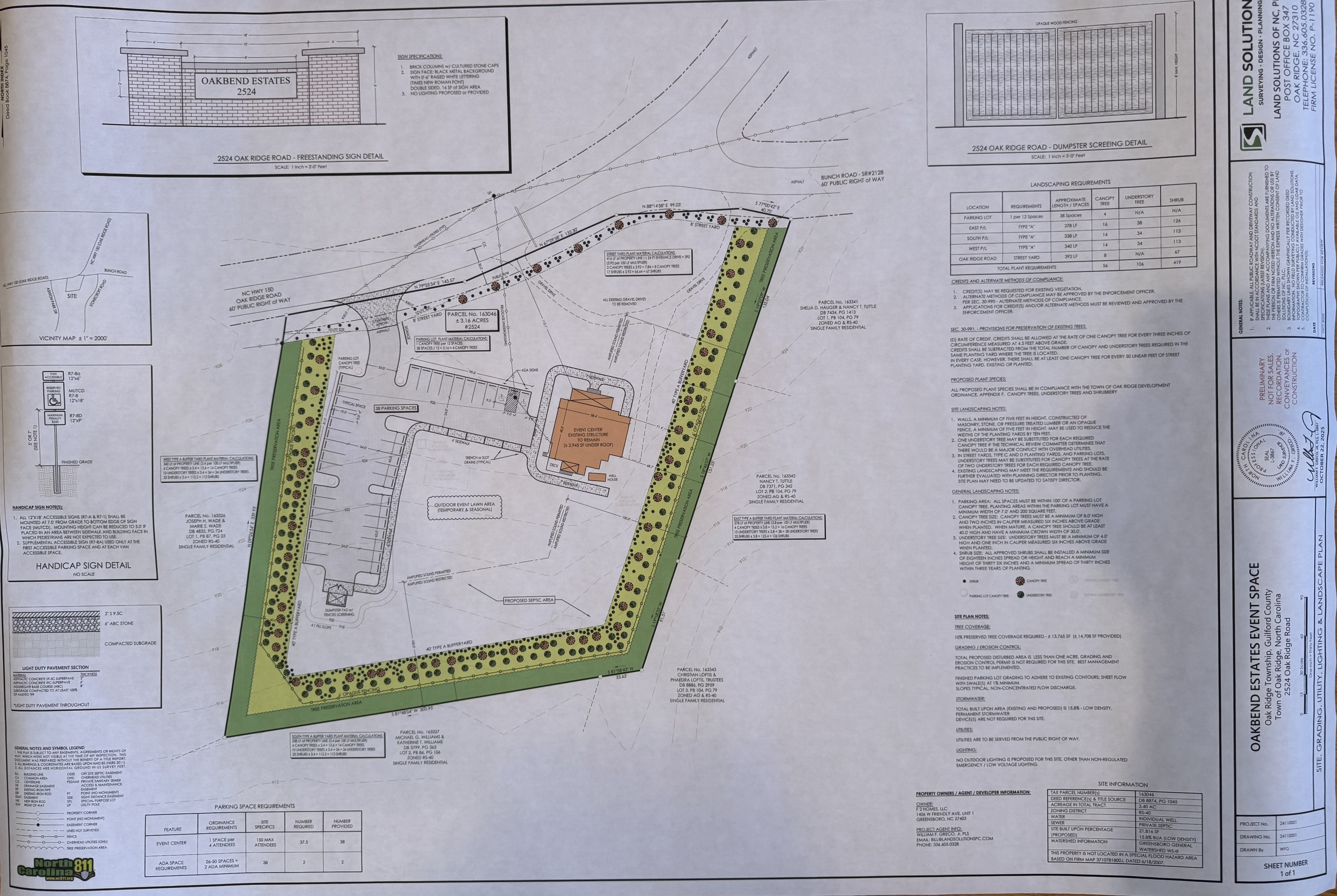
To give you further background, the developer met with adjoining property owners at the end of November. I have a copy of the proposed site plan, and you can see an image of it here.

He was vague about the types of events planned, mentioning things like tutoring and book clubs, but it’s hard to imagine those sustaining an event-center business. Especially given that Oak Ridge already has a brand-new town event facility our tax dollars funded for small community events.

The current proposal includes:

  • Renovating the home for event-center use (interior layout details were unclear)
  • Building a 38-space parking lot
  • Removing outbuildings
  • Creating an “outdoor event lawn area”
  • Adding a 30-foot planted buffer, a 6-foot privacy fence, and leaving 10 feet of existing trees
  • Re-orienting the driveway access to face Highway 150

Parking, Alcohol Use, and Traffic Concerns

The developer stated they hope to host weddings and large gatherings (“Everyone thinks of weddings, which we would love”, as the developer said in our meeting). For 150 guests, they are assuming four adults per car to justify only 38 parking spaces. When asked what would happen if attendees arrive individually, as is common, they suggested they “might” work out off-site parking or shuttle arrangements with nearby churches, but no such agreement currently exists, or seems to be in the works at this time.

Without firm parking plans, overflow attendees could end up parking on our neighborhood streets, or attempting to. Additionally, the corner at Bunch Road and Highway 150 is a dangerous blind intersection. There was actually a wreck there just last week (I am writing this on January 19, 2026). The addition of 150+ guests attempting to enter or leave the property right at that intersection, possibly with alcohol as an added factor, will not make the corner a safer area.

Regarding alcohol: I confirmed with Town Hall that there is nothing preventing them or their renters from obtaining the appropriate alcohol permits. With the intersection of Bunch Road and Highway 150 already being a dangerous one with poor visibility, the prospect of large events letting out, potentially with alcohol involved, raises safety concerns for all of us.

Many of our children enjoy the rare freedom of playing outside in a quiet, residential area. Increasing traffic and late-night event departures at this intersection does not make our neighborhood safer for them.

Noise, Lighting, and Future Expansion

I’m also concerned about noise and light from large outdoor events. While they must comply with the 80-decibel ordinance, I could see the potential for that being a recurring issue. There are no permanent outdoor lighting fixtures planned at this time, but they can always request permits later, I confirmed at City Hall. The site plan’s “Outdoor Event Lawn Area” appears large enough to accommodate an event tent. The developer referenced his involvement in Summerfield Farms and The Gardens at Gray Gables - both of which feature permanent event tents. I’ve attended tented events at Gray Gables, and the light and sound travel easily, even on a much larger lot than this one.

Neighborhood homes already felt the noise from the past year’s construction work from the same site. Regular large-scale events, amplified sound, and outdoor gatherings would only increase that disruption.

In Conclusion

I don’t see how turning this property into an event center improves the peace and character of our neighborhood, which are qualities that drew many of us here in the first place. The potential for increased traffic, noise, and nighttime activity seems likely to affect everyone nearby. Personally, I would love to see the house restored for a quiet community use, like a library or a bed and breakfast. But a large commercial event venue on such a small lot, operating “as often as possible,” simply doesn’t fit our residential environment.

What can you do?

The most important actions you can take to help oppose this are four things:

  1. Show up to the April 9 meeting. Solidarity matters!
  2. Write to the town council about your feelings. You can't talk to them face to face due to the hearing rules, but you can email.
  3. Let other neighbors know what's happening here, and share this site
  4. Reach out to me with evidence on how the Special Use Permit will negatively affect our community. The hearing is evidence based, and I appreciate your input.
  5. Provide references for any sound engineers, traffic engineers, or appraisers (or any other relevant expert witnesses) who could provide testimony at the hearing
I truly hope you’ll consider attending the April 9 hearing at 7pm at Oak Ridge Town Hall.

Because our property directly adjoins the site and thus "have standing", I am permitted to speak, and I can present comments and concerns from other Ashton Park residents as well. Please reach out with any questions or thoughts. I’ll be gathering as much information as possible before the hearing.

You can message me on facebook or Next Door about this, or you can email me RIGHT HERE.

Thanks for your time and I hope to see you April 9,
Phaedra Loftis